Description
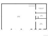
Versatile 2,535 SF commercial space at 16 Sloop Hill Rd in New Windsor, NY, featuring 14’ ceilings, heat and central A/C, a full bathroom, and a 3-ton vehicle lift. Includes three 12’ x 14’ overhead garage doors with electric openers, a shop air compressor, and parking for approximately 10 vehicles. Connected to town water and septic. Conveniently located 4 miles to Routes 84/87, 10 miles to Woodbury Common, and 5 miles to Stewart Airport. Oil heat (above-ground tank), attached 3-car garage.
-
0BEDS
-
0.28ACRES
-
0BATHS
-
01/2 BATHS
School Ratings & Info
Description
Versatile 2,535 SF commercial space at 16 Sloop Hill Rd in New Windsor, NY, featuring 14’ ceilings, heat and central A/C, a full bathroom, and a 3-ton vehicle lift. Includes three 12’ x 14’ overhead garage doors with electric openers, a shop air compressor, and parking for approximately 10 vehicles. Connected to town water and septic. Conveniently located 4 miles to Routes 84/87, 10 miles to Woodbury Common, and 5 miles to Stewart Airport. Oil heat (above-ground tank), attached 3-car garage.
© 2026 OneKey MLS. All rights reserved. IDX information is provided exclusively for consumers' personal, non-commercial use and may not be used for any purpose other than to identify prospective properties consumers may be interested in purchasing. Information is deemed reliable but is not guaranteed accurate by the MLS or Nicole Burke, MBA | Charles Rutenberg Realty. Data last updated: 2026-03-14T00:18:06.61.
