Description
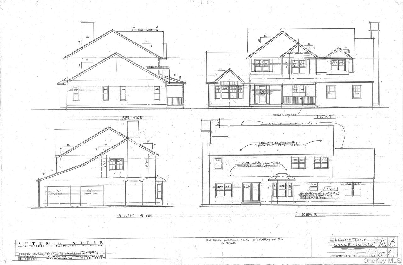
15,338 Sqft Vacant Land; Ready to build your Dream house immediately, in the Town of Huntington. The Building Size is 42 X 52 ft., 2 Story comes with 4 Bedrooms, 3 Bathrooms, 520 Sqft Garage. Approved plan and All Permits are in place. It is close to parks, schools, shopping malls, etc. A few minutes to LIRR station. Low property tax, Must to see. Great for self-use, or investment.
-
0BEDS
-
N/AACRES
-
0BATHS
-
01/2 BATHS
School Ratings & Info
Description
15,338 Sqft Vacant Land; Ready to build your Dream house immediately, in the Town of Huntington. The Building Size is 42 X 52 ft., 2 Story comes with 4 Bedrooms, 3 Bathrooms, 520 Sqft Garage. Approved plan and All Permits are in place. It is close to parks, schools, shopping malls, etc. A few minutes to LIRR station. Low property tax, Must to see. Great for self-use, or investment.
Related Properties
© 2026 OneKey MLS. All rights reserved. IDX information is provided exclusively for consumers' personal, non-commercial use and may not be used for any purpose other than to identify prospective properties consumers may be interested in purchasing. Information is deemed reliable but is not guaranteed accurate by the MLS or Nicole Burke, MBA | Charles Rutenberg Realty. Data last updated: 2026-03-14T00:18:06.61.
